Apto JB
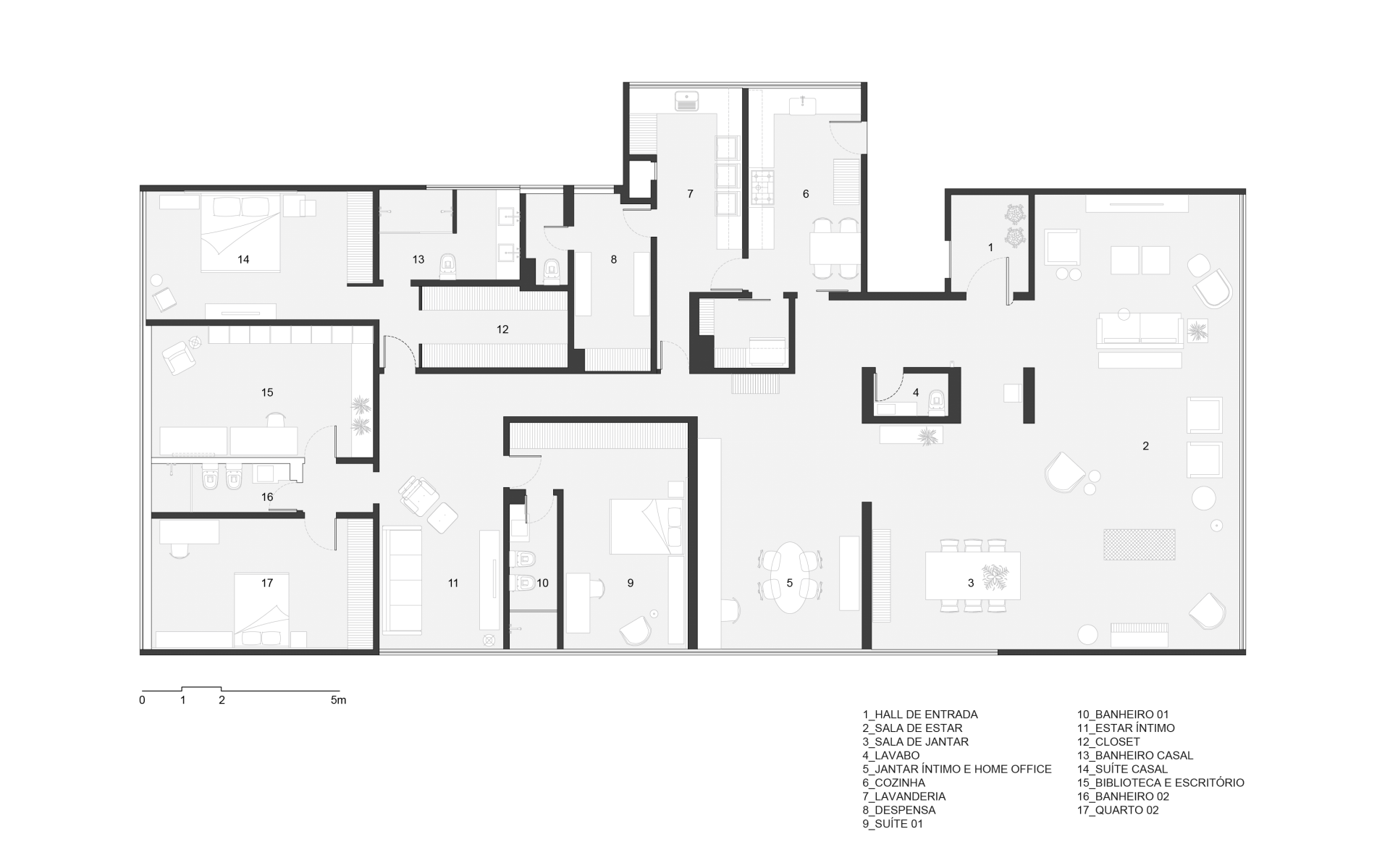
A proposta para a reforma do apartamento se deu com a retomada dos conceitos modernistas: valorizar as relações com o meio externo, priorizar formas simples e geométricas e manter os ambientes integrados e fluídos. Com arquitetura moderna, a estrutura é externa ao edifício e a planta é livre, sem vigas e pilares internos. Em uma base atemporal, o projeto cria integração espacial e visual, mesclando revestimentos neutros em uniformidade de cores e materiais. O tom branco, concreto, madeira maciça e mármore italiano, aparecem de forma repetida e contrastam-se entre si. Em meio às paredes, que parecem flutuar do piso com o rodapé invertido, as portas pretas, de caixilho invisível e bandeira até a laje, criam interrupções e recortes nos planos brancos. Com desenho puro e monolítico, os móveis sob medida são neutros para que a escolha precisa do mobiliário solto se sobressaia, contrastando peças de design brasileiro atuais, peças clássicas do design modernista e outras de valor afetivo. Hoje o apartamento respira a simplicidade e suavidade aprendida nas lições do modernismo e encanta com a originalidade dos ambientes contemporâneos.
A proposta para a reforma do apartamento se deu com a retomada dos conceitos modernistas: valorizar as relações com o meio externo, priorizar formas simples e geométricas e manter os ambientes integrados e fluídos. Com arquitetura moderna, a estrutura é externa ao edifício e a planta é livre, sem vigas e pilares internos. Em uma base atemporal, o projeto cria integração espacial e visual, mesclando revestimentos neutros em uniformidade de cores e materiais. O tom branco, concreto, madeira maciça e mármore italiano, aparecem de forma repetida e contrastam-se entre si. Em meio às paredes, que parecem flutuar do piso com o rodapé invertido, as portas pretas, de caixilho invisível e bandeira até a laje, criam interrupções e recortes nos planos brancos. Com desenho puro e monolítico, os móveis sob medida são neutros para que a escolha precisa do mobiliário solto se sobressaia, contrastando peças de design brasileiro atuais, peças clássicas do design modernista e outras de valor afetivo. Hoje o apartamento respira a simplicidade e suavidade aprendida nas lições do modernismo e encanta com a originalidade dos ambientes contemporâneos.
-
LocalCuritiba, PR
-
Área350m²
-
Ano do Projeto2017
-
Finalização2018
-
FotosEduardo Macarios
