Apto Mikare
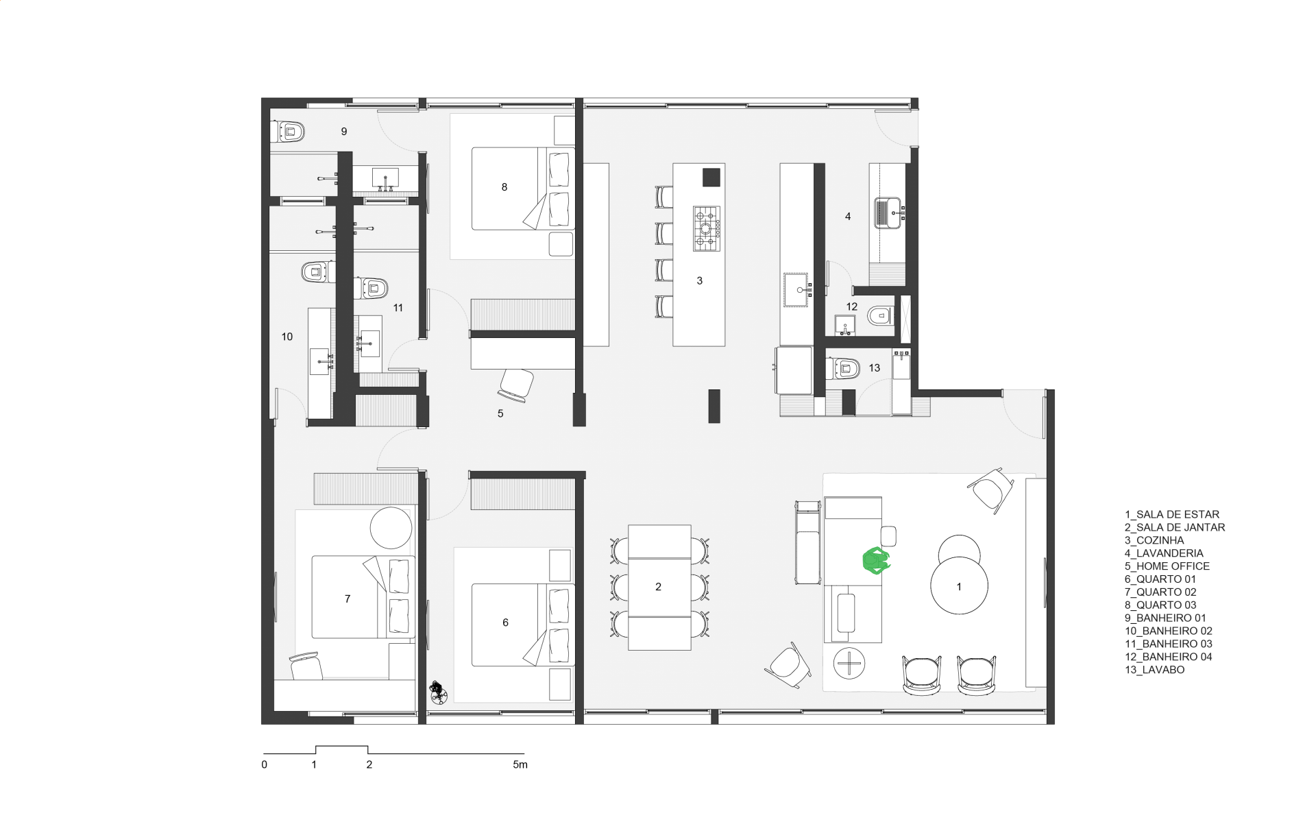
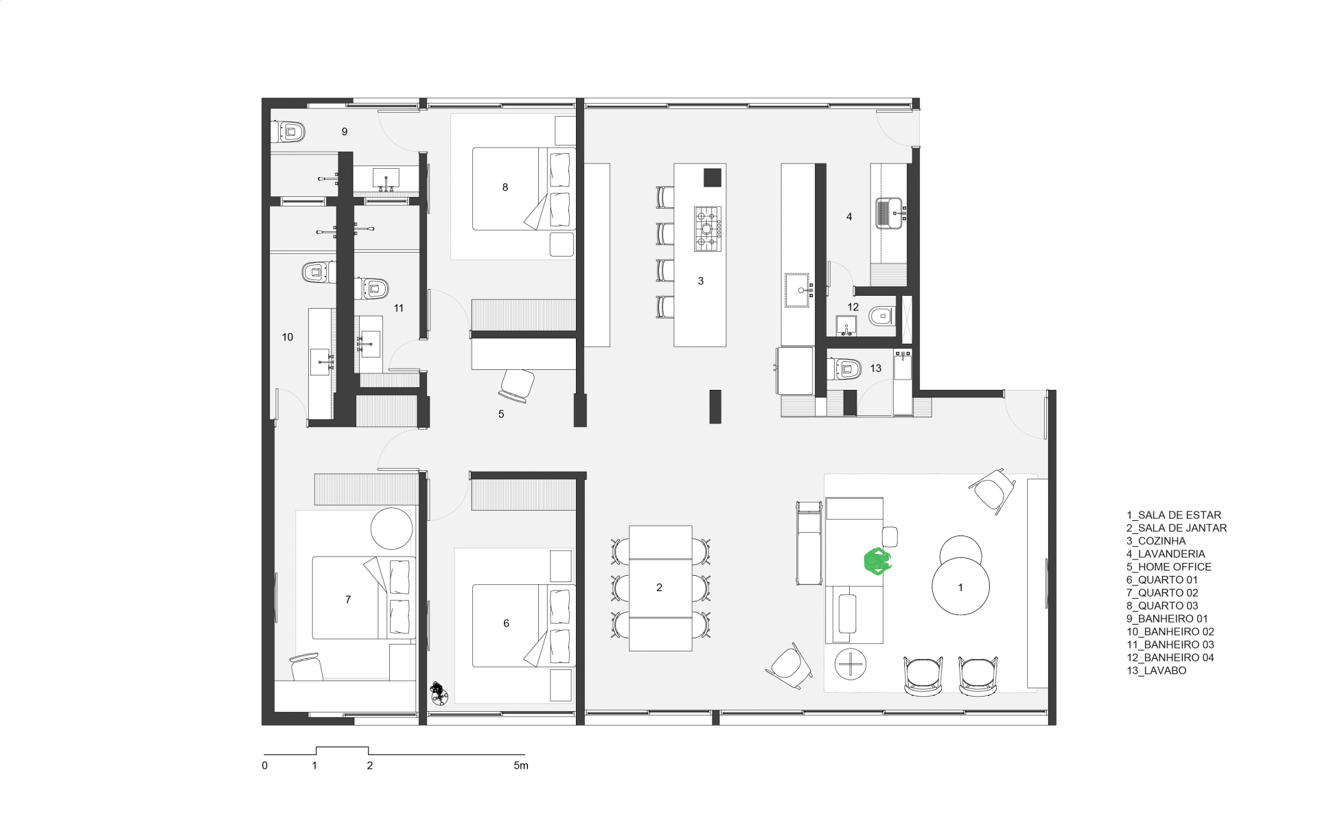
O layout e a organização dos ambientes foram atualizados para atender as necessidades contemporâneas do lar, como integração dos espaços e maior ventilação e claridade. Ao retirar as paredes que antes delimitavam as áreas de serviço, o grande ambiente social ganhou uma visão da cidade para os dois lados do edifício, uma vez que as janelas-fita - características dessa fase do modernismo – inundaram o apartamento de luz natural, principalmente na área gourmet, antes sem aberturas. O volume central foi revestido com um painel amadeirado, reforçando o tom de madeira do piso. Esse painel foi importante, pois aumentou o espaço útil do lavabo pré-existente, ao mesmo tempo que mimetizou as suas aberturas. A madeira do painel e piso ditaram a atmosfera da escolha de mobiliário solto, num geral mais sóbria, apenas com um ponto de cor num elemento marcante e inusitado da composição – o sofá.
O layout e a organização dos ambientes foram atualizados para atender as necessidades contemporâneas do lar, como integração dos espaços e maior ventilação e claridade. Ao retirar as paredes que antes delimitavam as áreas de serviço, o grande ambiente social ganhou uma visão da cidade para os dois lados do edifício, uma vez que as janelas-fita - características dessa fase do modernismo – inundaram o apartamento de luz natural, principalmente na área gourmet, antes sem aberturas. O volume central foi revestido com um painel amadeirado, reforçando o tom de madeira do piso. Esse painel foi importante, pois aumentou o espaço útil do lavabo pré-existente, ao mesmo tempo que mimetizou as suas aberturas. A madeira do painel e piso ditaram a atmosfera da escolha de mobiliário solto, num geral mais sóbria, apenas com um ponto de cor num elemento marcante e inusitado da composição – o sofá.
-
LocalCuritiba, PR
-
Área166m²
-
Ano do Projeto2022
-
Finalização2022
-
FotosEduardo Macarios
