Casa AC
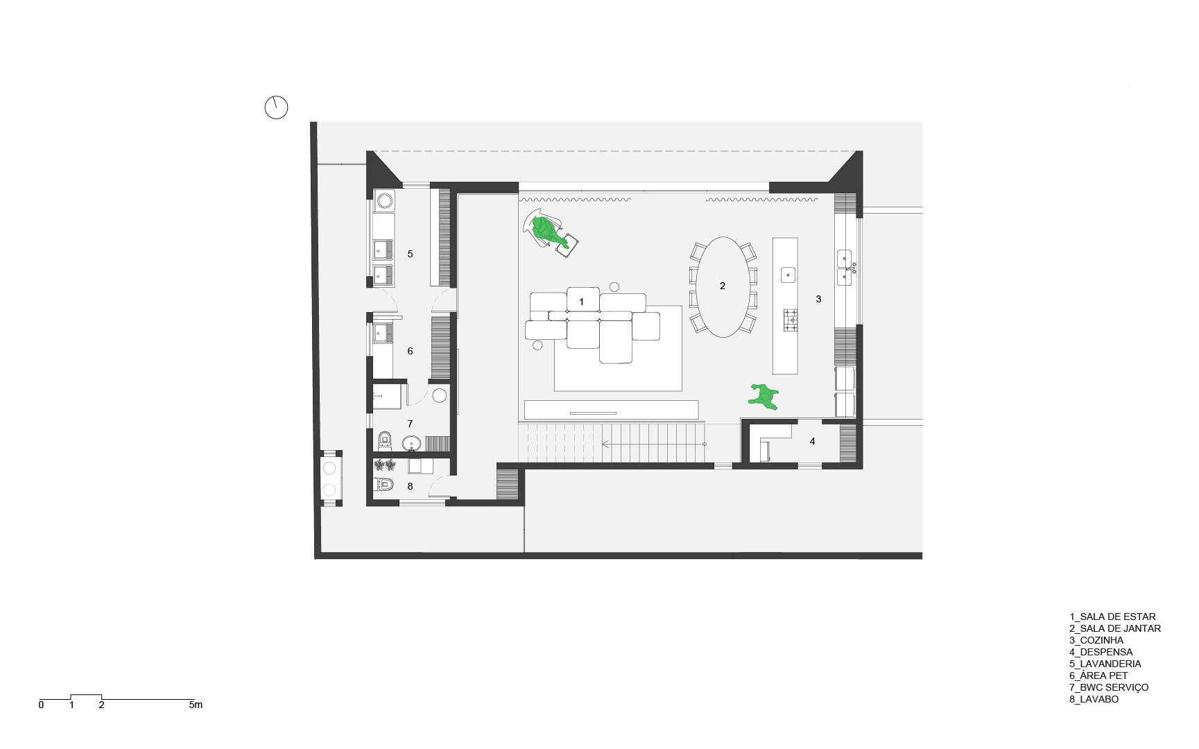
“Uma casa para receber visitas e dar muitas festas” foi o pedido da cliente desde a concepção do projeto arquitetônico. Com essa diretriz, o projeto de interiores buscou ambientes sociais amplos e integrados, com fácil modificação no layout de mobiliário e um uso completo do espaço – o sofá em ilha possibilita conversas ao seu redor, olhando tanto para o estar com TV quanto para a área externa. O canto em painel amadeirado com perfis lineares em LED, em dias de festa, se transforma no espaço destinado à mesa de DJ. Destaque para a escada metálica engastada e revestida em madeira natural e cabos de aço como proteção lateral e para a poltrona Benjamin de Sérgio Rodrigues. Fica evidente a linha contemporânea e atemporal - e a composição monocromática em equilíbrio com acabamentos amadeirados fazendo o contraste entre os tons acinzentados.
“Uma casa para receber visitas e dar muitas festas” foi o pedido da cliente desde a concepção do projeto arquitetônico. Com essa diretriz, o projeto de interiores buscou ambientes sociais amplos e integrados, com fácil modificação no layout de mobiliário e um uso completo do espaço – o sofá em ilha possibilita conversas ao seu redor, olhando tanto para o estar com TV quanto para a área externa. O canto em painel amadeirado com perfis lineares em LED, em dias de festa, se transforma no espaço destinado à mesa de DJ. Destaque para a escada metálica engastada e revestida em madeira natural e cabos de aço como proteção lateral e para a poltrona Benjamin de Sérgio Rodrigues. Fica evidente a linha contemporânea e atemporal - e a composição monocromática em equilíbrio com acabamentos amadeirados fazendo o contraste entre os tons acinzentados.
-
LocalCuritiba, PR
-
Área145m²
-
Ano do Projeto2021
-
Finalização2023
-
FotosEduardo Macarios
