Casa Osten
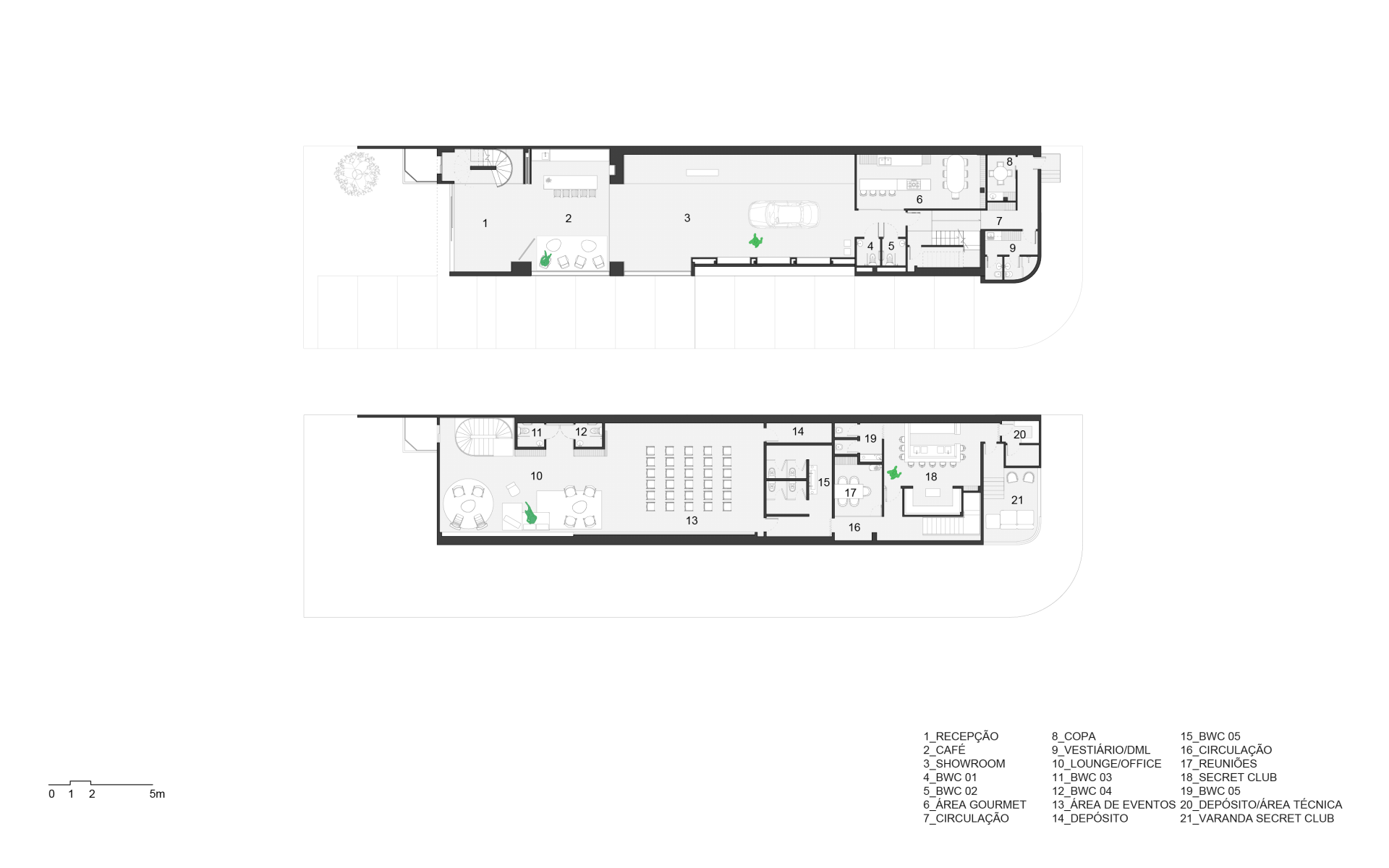
A Casa Osten é o lugar que diversos universos se encontram e constroem o cenário perfeito para experiências surpreendentes e encontros estimulantes. No projeto, o conceito Omotenashi, filosofia japonesa de hospitalidade, foi o elemento principal desde o ínicio de sua concepção. Além de um ambiente imponente, o projeto possuí uma atmosfera acolhedora que trabalha os espaços como ambientes de experimentação e encontros.
A Casa Osten é o lugar que diversos universos se encontram e constroem o cenário perfeito para experiências surpreendentes e encontros estimulantes. No projeto, o conceito Omotenashi, filosofia japonesa de hospitalidade, foi o elemento principal desde o ínicio de sua concepção. Além de um ambiente imponente, o projeto possuí uma atmosfera acolhedora que trabalha os espaços como ambientes de experimentação e encontros.
-
LocalSão Paulo, SP
-
Área650m²
-
Ano do Projeto2023
-
Finalização2024
-
FotosEduardo Macarios